120 m² İki Katlı Çelik Villa
120 m² iki katlı çelik villa; alt katta sosyal yaşamı, üst katta ise özel alanları kusursuz biçimde ayıran planıyla modern yaşamın ritmine uyum sağlar. Geniş salon–mutfak–veranda ilişkisi ve üst katta gün ışığıyla dolu ferah yatak odalarıyla, şehirden kopmadan müstakil yaşam isteyenler için güçlü bir alternatif sunar.
120 m² kullanım alanına sahip bu iki katlı çelik villa, yaşamı katlara ayıran bilinçli bir mimari kurgu üzerine inşa edilmiştir. Günlük hayatın temposu ile özel yaşam alanlarını net biçimde ayıran bu yapı, hem konforu hem de düzenli bir yaşam alışkanlığını destekler.
Alt Kat – Yaşamın Merkezi
Alt katta yer alan geniş salon ve mutfak alanı, verandayla bütünleşerek evin sosyal merkezini oluşturur. Bu alan yalnızca bir oturma alanı değil;
*misafir ağırlanan,
*ailece vakit geçirilen,
günün büyük bölümünün geçtiği bir yaşam sahnesidir.
Veranda bağlantısı sayesinde iç ve dış mekân arasındaki sınırlar yumuşar; bahçe kullanımı doğal bir uzantı haline gelir.
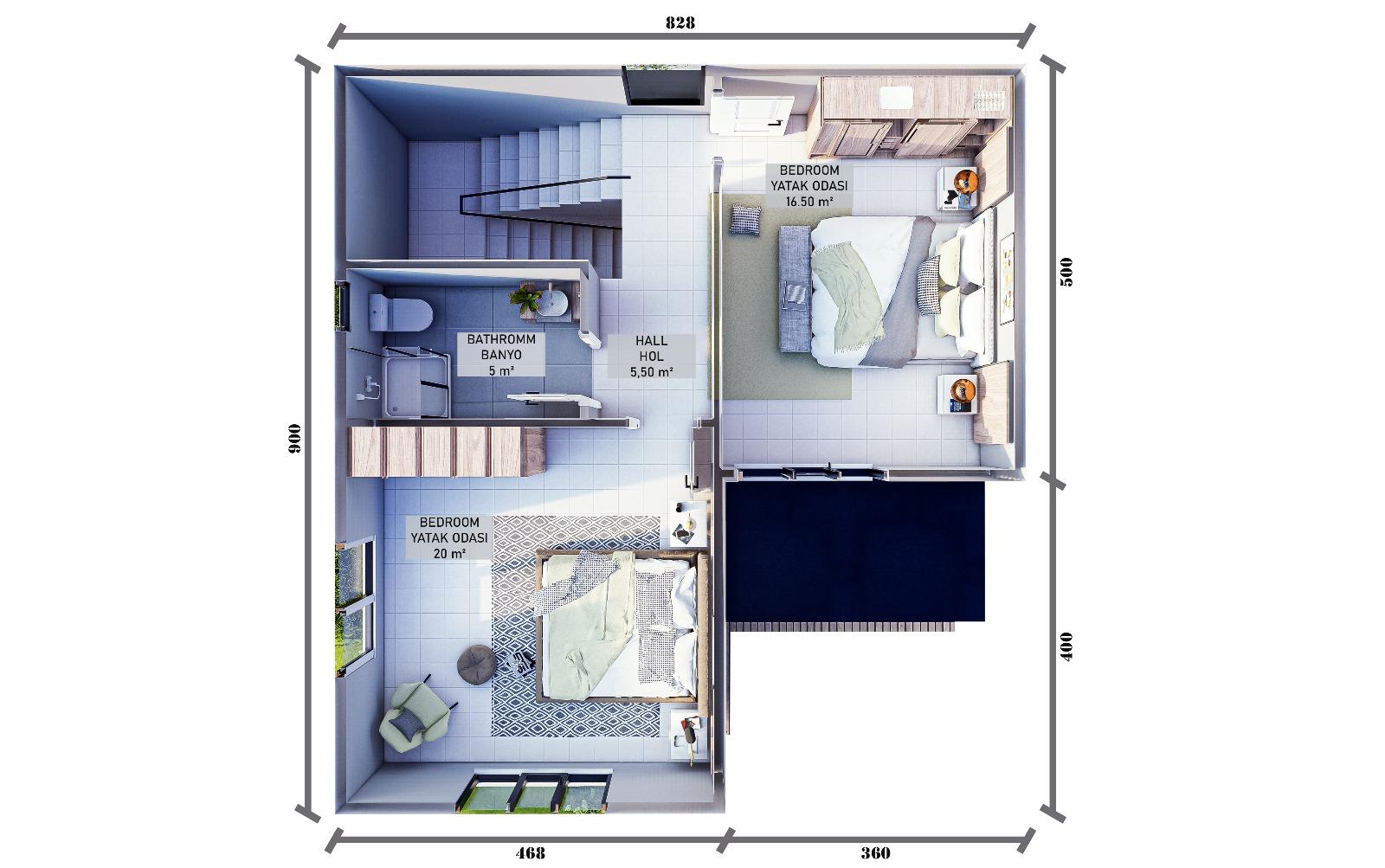
Üst Kat – Özel ve Sakin Alanlar
Üst katta konumlanan iki geniş yatak odası, her yönden gün ışığı alacak şekilde planlanmıştır. Bu sayede odalar yalnızca ferah değil, aynı zamanda gün boyu aydınlık ve yaşaması keyifli mekânlar sunar. Üst kattaki banyo, odalara yakın konumuyla kullanım kolaylığı sağlarken katın bütününde mahremiyet hissini güçlendirir.
Neden Bu Villa?
*İki katlı plan: Sosyal ve özel alanlar net biçimde ayrılır
*Geniş salon–mutfak: Günlük yaşam için rahat ve akıcı kullanım
*Veranda: Açık alanla güçlü ilişki
*Ferah yatak odaları: Işık alan, huzurlu üst kat yaşamı
*Çelik taşıyıcı sistem: Deprem güvenliği, uzun ömür ve sağlamlık
Çelik taşıyıcı sistem sayesinde yapı, yüksek dayanım ve güvenlik standartlarına sahiptir. Fabrika kontrollü üretim ve sahada hızlı montaj süreci, uygulama kalitesini artırırken zaman kaybını minimuma indirir.
Dış cephede modern ve güçlü bir mimari dil tercih edilmiştir. İki katlı formu sayesinde hem arsa kullanımını verimli kılar hem de estetik açıdan prestijli bir duruş sergiler.
120 m² iki katlı çelik villa modeli; şehirden kopmadan müstakil yaşamak isteyen, modern çizgilerden hoşlanan ve fonksiyonel ama karakterli bir ev arayan kullanıcılar için dengeli, güçlü ve uzun vadeli bir konut çözümüdür.
Alt Kat – Yaşamın Merkezi
Alt katta yer alan geniş salon ve mutfak alanı, verandayla bütünleşerek evin sosyal merkezini oluşturur. Bu alan yalnızca bir oturma alanı değil;
*misafir ağırlanan,
*ailece vakit geçirilen,
günün büyük bölümünün geçtiği bir yaşam sahnesidir.
Veranda bağlantısı sayesinde iç ve dış mekân arasındaki sınırlar yumuşar; bahçe kullanımı doğal bir uzantı haline gelir.
Üst Kat – Özel ve Sakin Alanlar
Üst katta konumlanan iki geniş yatak odası, her yönden gün ışığı alacak şekilde planlanmıştır. Bu sayede odalar yalnızca ferah değil, aynı zamanda gün boyu aydınlık ve yaşaması keyifli mekânlar sunar. Üst kattaki banyo, odalara yakın konumuyla kullanım kolaylığı sağlarken katın bütününde mahremiyet hissini güçlendirir.
Neden Bu Villa?
*İki katlı plan: Sosyal ve özel alanlar net biçimde ayrılır
*Geniş salon–mutfak: Günlük yaşam için rahat ve akıcı kullanım
*Veranda: Açık alanla güçlü ilişki
*Ferah yatak odaları: Işık alan, huzurlu üst kat yaşamı
*Çelik taşıyıcı sistem: Deprem güvenliği, uzun ömür ve sağlamlık
Çelik taşıyıcı sistem sayesinde yapı, yüksek dayanım ve güvenlik standartlarına sahiptir. Fabrika kontrollü üretim ve sahada hızlı montaj süreci, uygulama kalitesini artırırken zaman kaybını minimuma indirir.
Dış cephede modern ve güçlü bir mimari dil tercih edilmiştir. İki katlı formu sayesinde hem arsa kullanımını verimli kılar hem de estetik açıdan prestijli bir duruş sergiler.
120 m² iki katlı çelik villa modeli; şehirden kopmadan müstakil yaşamak isteyen, modern çizgilerden hoşlanan ve fonksiyonel ama karakterli bir ev arayan kullanıcılar için dengeli, güçlü ve uzun vadeli bir konut çözümüdür.
Galeri
Teknik Özellikler
- Metrekare: 120
- Oda Sayısı: 2
- Banyo Sayısı: 2
- Tavan Yüksekliği: Belirtilmedi
- Çatı Malzemesi: Belirtilmedi
- Kapı Malzemesi: Belirtilmedi
- Duvar Malzemesi: Belirtilmedi
- Pencere Bilgisi: Belirtilmedi
